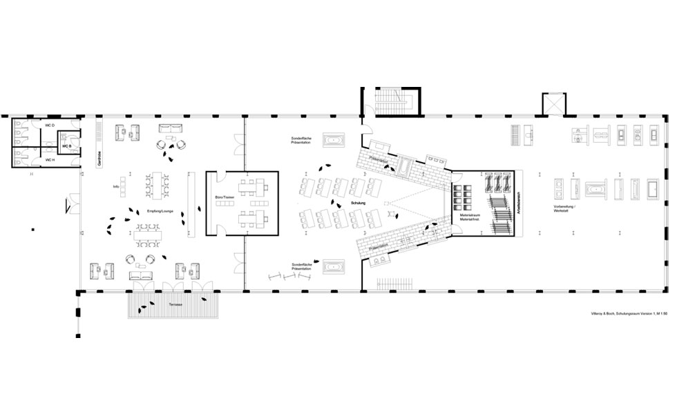
Studie zur Entwicklung eines Schulungsraums in vorhandenen Gebäuden der Villeroy & Boch AG.
Home » Übersicht 3D Visualisierung » Schulungsraum, Villeroy & Boch
Studie zur Entwicklung eines Schulungsraums in vorhandenen Gebäuden der Villeroy & Boch AG.
Ⓒ rinck 2026